TA Hatsudai Building is a mixed-use building that includes restaurants and office spaces. It is located on a block placed between a major road that carries the Metropolitan Expressway and a long green space that brings some nature into the area.
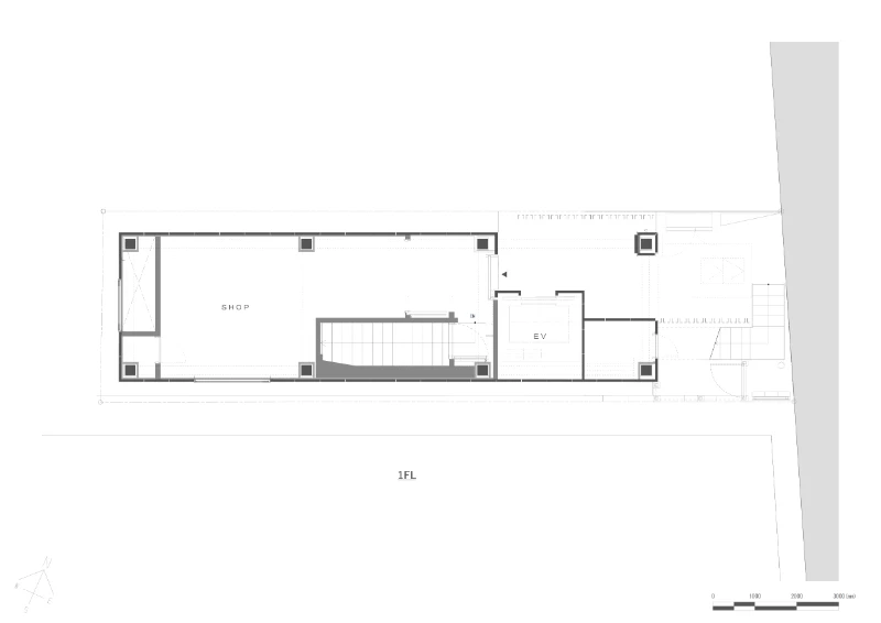
The site is directly next to the south exit of Hatsudai Station on the Keio New Line subway. The plot of land is very small and narrow, measuring only 4.5 meters in width and 16.5 meters in depth. Because the frontage is so narrow compared to the long depth, construction work on this site was extremely difficult.
From the very beginning of the planning process, several simulations were carried out. These included studies for pile construction and for how the steel frame could be set up safely and efficiently. By considering the floor area ratio, which is an important rule that controls how tall or large a building can be in relation to the size of its frontage, the project team decided to use a steel-frame structure with one basement floor and seven floors above ground.
The south exit of Hatsudai Station, where this building stands, is very different from the east exit. The east side has a more urban atmosphere and contains cultural and business facilities such as Tokyo Opera City and the New National Theatre. In contrast, the south side has small shops and simple houses along the streets. There is also the Hatsudai Greenway nearby, which was built over the covered Tamagawa Irrigation. Even though this area is in the center of the city, it has a quiet and local feeling. However, the streetscape itself is rather plain, and there are not many buildings that stand out.
When designing the LANDMARK–TA Hatsudai Building, our aim was to create a building that could act as a clear point of reference for people walking through this part of the city. We wanted it to become a landmark that helps people recognize and understand their surroundings.
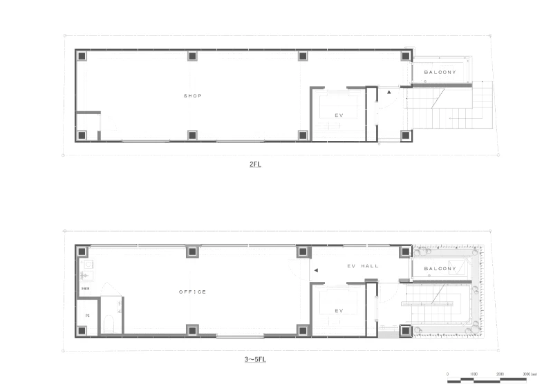
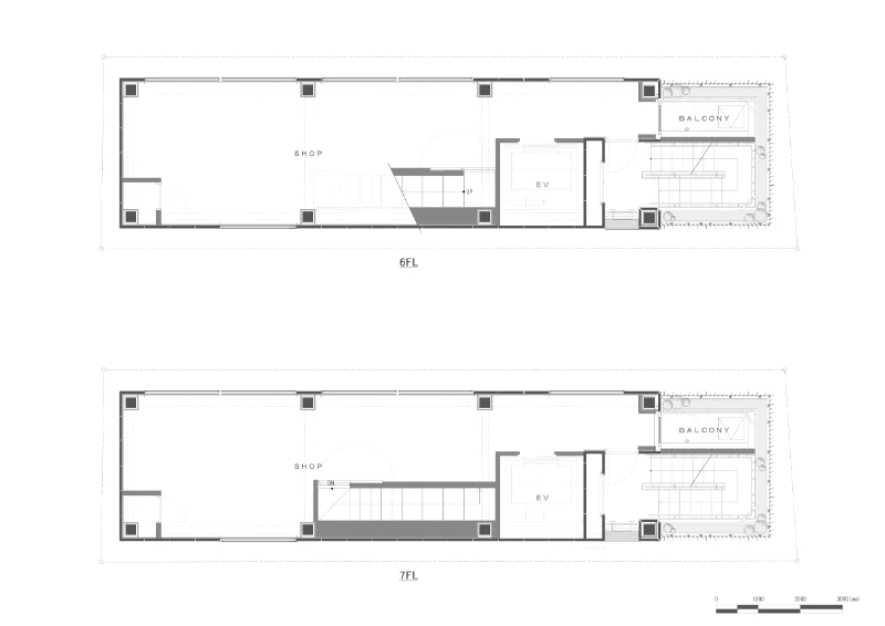
To achieve this within the small and narrow lot, the tenant space was arranged at the back of the site so it could be as efficient and flexible as possible. The front side facing the road was used for the outdoor emergency staircase and evacuation balcony, which are required for safety. This arrangement goes against the usual planning approach, where these elements are usually placed at the rear of the building.
This design choice was a final effort to make the tenant area work well on a site with such a limited frontage and long depth. As a result, the front façade of the building naturally becomes filled with elements that are normally considered to be on the “back” side, such as the emergency stairs and evacuation balcony. Instead of seeing these as negative parts, we tried to treat them as a positive design opportunity. We worked to turn them into a three-dimensional outdoor space that would give the façade depth and character.
The vertical aluminum angle grilles placed on the façade have different lengths and different installation heights. Because of these variations, they create a gentle and irregular rhythm. These grilles connect visually with the plants placed around them, and together they show different looks depending on the angle from which they are viewed and the weather conditions at that moment.
We hope this building, with its façade that blends architecture and plants, will be cherished for years to come as an indispensable green landmark defining this area.

























