Time present and time past Are both perhaps present in time future, And time future contained in time past.
If all time is eternally present
All time is unredeemable. […]’
T. S. Eliot, ‘Four Quartets’
The future museum occupies the southwest corner of the competition site, flanking the pedestrian sea promenade and continuing the existing/planned building volume. By placing it exactly there, we see the possibility of having short and direct vehicle/maintenance connections, maximizing the entire pedestrian and landscape area. The east part of the site is left wholly unoccupied, making a solid connection with the future park around the castle and making the museum a natural part. Landscape planning has a central role in the entire project, and the museum itself, on the ground level, occupies only less than 15% of the given site with complex building elements, and we can see one massive part of it as a pure park and art garden.
The reference for this layout comes from this type of landscape, native and often even endemic Finnish species and landscape features – the connection between water, land and trees. It is well known that nothing is better than leaving nature occupying and revitalizing back and once covered with asphalt land. The project proposes a kind of ‘storage’ for art and artifacts raised and flying above the ground as in the typical vernacular buildings in some parts of the country and geographical area. With that, create a new ‘wetland’ on the site, made out of marshes, swamps, bog ponds, and others, aside from local tree species, which will attract the birds and animals native to this natural environment. At the same time, this type of landscape would work as a buffer and a reservoir in case of storms and high-water events.
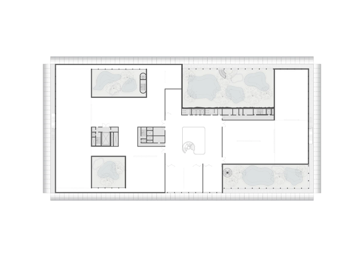
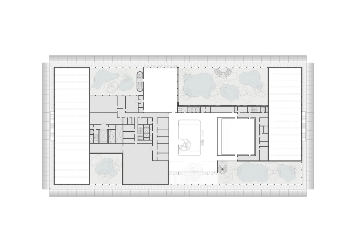
The building is a low, calm volume along the waterfront pathway. The layout follows the principle of having inner courtyards, as it is also in the nearby castle, but it is raised to make the ground floor an open park area instead of a blind border wall. The volume occupies a minimal amount of the side on the ground level and a bigger one when comparing the top levels. So, it creates a porous volume, pervious and passable for the visitors, not a single closed mass on the site. The light structure creates a visual connection with the existing city volumes and the future green areas to be developed. The volume sits logically in the corner of the competition site and completes the logical connections with existing or proposed new buildings around it.
The four facades are treated almost equally outside to create a comprehensive volume. The building looks like an intact solid from a distance, but getting closer to it or inside the museum makes it feel way more open and transparent. The facade is made out of vertical independent module panels, which could be treated differently, and the horizontality could vary, giving more open space and direct unobscured views towards the main important directions surrounding the competition site. Behind this ‘dress’ that wraps the entire building are the terraces, the patios and the museum volumes, each one having its inner materiality, which is at the end unified by the calmness of the texture-looking at the wooden sub- and structure of the facades.











