The Connector – Town Hall

Architects: GRUPPA STUDIO & ANAGRAM A-U Year: 2021

Location: Přerov, Czechia

Lead Architects: Jan Kudlička, Anne-Sereine Tremblay, Marina Kounavi

Team: Konstantina Lola

Website: www.gruppa.studio

Instagram: @gruppa.studio

Website: www.anagram-au.com

Instagram: @anagram_au

Visualizer: The Big Picture

Website: www.bigpicturevisual.com

Instagram: @bigpicturevisual

Status: Competition 1st Prize

 


 

Reconstruction of the Town Hall

 

 

The brief requests the reconstruction of the Town Hall of Přerov, a building which dates back to 1969 outcome of an intensive political period of Czechia.

The connector offers a new image for the Town Hall of Přerov respecting the character of the building and emphasizing the aim of the town hall as a social generator rather than a power imposer.

 

 

 

 

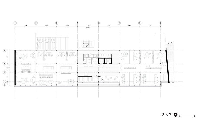
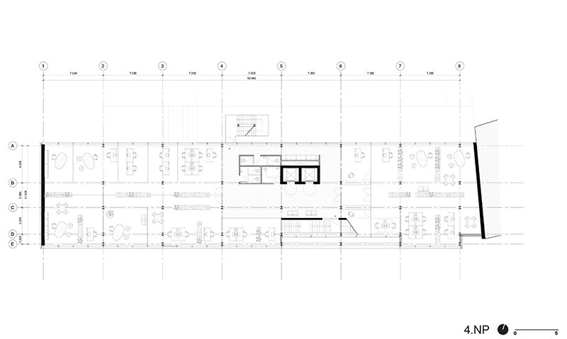
The building is composed of a repeated structural system – a concept that delivers flexibility and efficiency. The 6-story building will accommodate almost 5.000m2 of office program and public amenities.

 

 

 

The main idea is to create an open dialogue between the Public and the Town Hall.

 

 

 

 

By creating the Connector, the main stairs which cross the whole building enable easy communication between the departments and also create an entrance point to the terrace with a Café which becomes a contemporary viewpoint, a watchtower to the historic square of the Přerov city. 

 

 

 

The ground floor is the most public zone of the proposal and accommodates the majority of the meeting spaces between citizens and administration officers. The 1st up to the 4th floor accommodates different departments of the Town Hall.

 

 

Its department is organized around the lobby of the lifts and the linear stair.

 

 

 

 

 

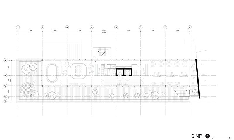
The lobby works as a waiting zone for the office space and accommodates secondary facilities like restrooms and kitchenettes for the employees. The last floor of the building is the most interactive and flexible space of the Town Hall and it is divided into two parts.

 

 

 

 

The one accommodates the meeting rooms of Town Hall and the other one, is given to the public and its uses vary from a café to a workshop room for the citizens.  The visitors have the chance to enjoy the panoramic view of the city of Přerov from that level. 

 

 

 

 

The concept of the stair emerged as a demand of the building to meet the fire safety requirements. 

 

 

 

 

 

The aim is the transformation of this demand into a tool that proposes a public route through the building and changes the image of the building.

 

 

 

 

It works as a connector between the departments and ends to the most flexible and public zone of the building which is the last floor. The stair’s space offers the possibility to work as an exhibition zone or a meeting place for the citizens or the employees.