In Jorge Luis Borges’ The House of Asterion, he tells the following: “It is true that I do not leave my house, but it is also true that its doors are open day and night to men and also to animals. Let anyone who wants to enter.”
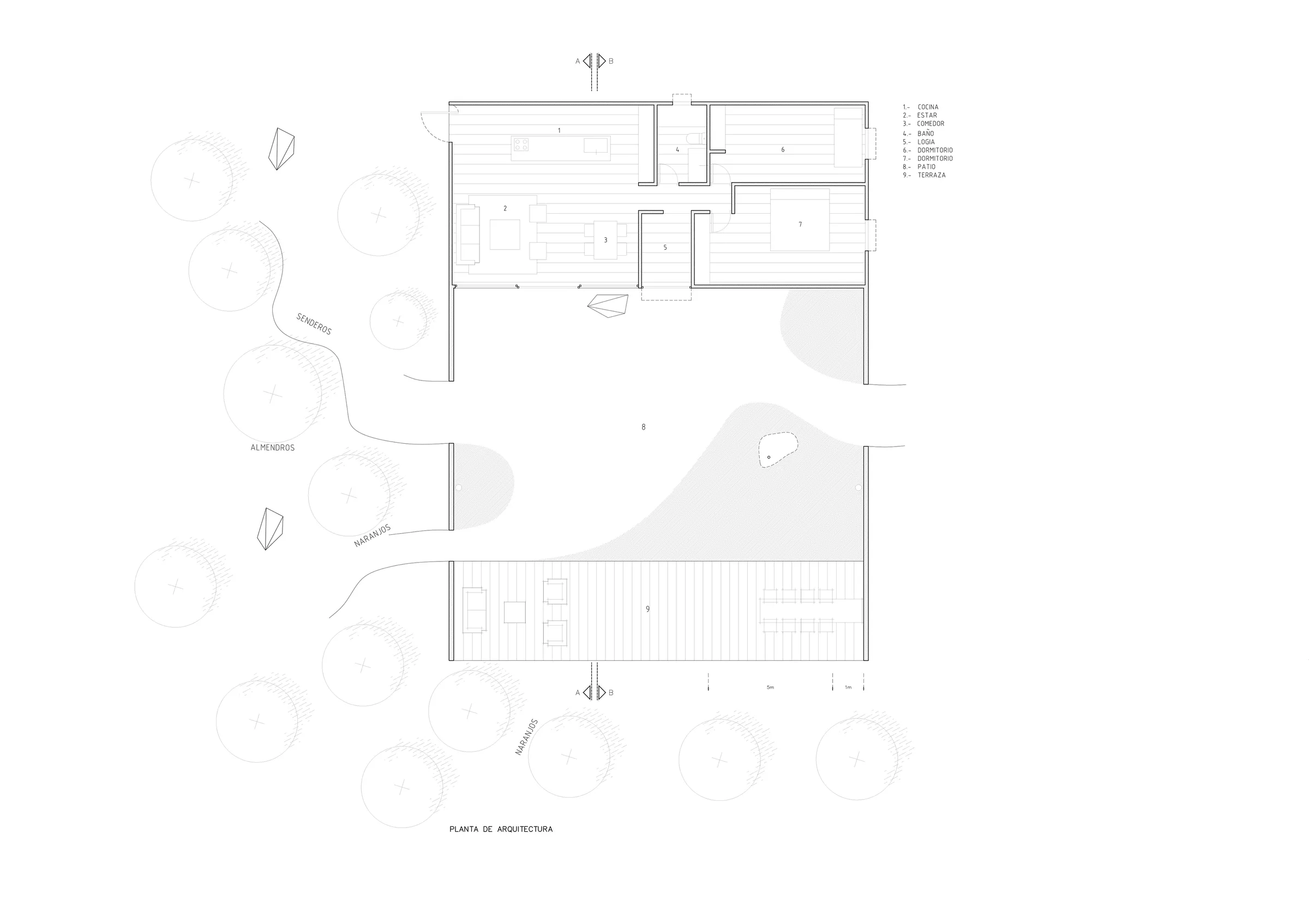
The project, located on the rural outskirts of the metropolitan region in the province of Melipilla, consists of a single-family house for a young couple and their small daughter. On the horizon, some neighbors surround the plot, which determined the location of the house. Just as in Borges’ story, two parallel walls, each 18 meters long, were placed, with openings arranged randomly that will remain open day and night, creating an inner garden with views of some existing orange trees and opening pathways toward the exterior of the plot.
The house’s garden acts as a mediator in the gradual transition between the interior and exterior. The house program is minimal, and the common areas such as the kitchen, living room, and dining room are mainly developed and open toward this space, while the master bedroom and the secondary bedroom are located to the north.
Considering the budget constraints and limited labor, a completely wooden structure was chosen. A single section of 1×8” pine wood was used almost exclusively for the exterior cladding and floor structure. Inside the courtyard, black raschel mesh, typical of agricultural constructions in the area, was used, creating a recognizable and austere interior.
From the outside, a neutral and hermetic volume is perceived. The untreated wood, over time, will take on a gray hue, enveloping the small garden and protecting it from the winds.























