Casa do Canastro

Architects: Architectural Affairs / Diogo Aguiar Studio Year: ON GOING

Location: Peso da Régua, Portugal

Lead Architect: Andreia Garcia, Diogo Aguiar

Team: Karina Dikova, Nadia Nika, Daniel Mudrák, Elda Rodrigues

Website: www.architecturalaffairs.pt / www.diogoaguiarstudio.com

Instagram: @architecturalaffairs / @diogoaguiarstudio

Status: Project

 

 


Set in a rural context, between the vineyards in Douro, in the north of Portugal, Casa do Canastro’s architecture bears witness to a space laden with memory that will give rise to a new programme.

 

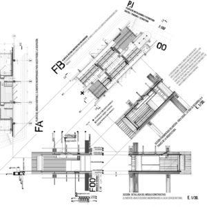
The reconversion of a former agricultural storage building (barn) into a very small housing building — a hut with two dorms —  is based on the spatial potentialities of the pre-existing building, both volumetric and material.

 

The proposed intervention marks a common central space with a double height — the living room — compressed between two contemporary volumes that are thus installed at the ends of the space and contain and hide the rest of the programme — the two bedrooms, the bathroom, the storage space, and a small kitchenette —.

 

The use of a unique materiality in the two new volumes at the tops — rough wood vertical planks — aims to introduce a visual contrast with the schist stone that formalizes both the peripherical walls and the floor pavement, giving a unique identity to the house, while reinforcing its’ authenticity. In these new wooden volumes, geometric windows  — pure squares and circles — are opened, both to the inside and to the outside of the house, for a greater relationship between spaces.

 

From the exterior context, the intervention of rehabilitation is mainly noticed by the formalization of a big dormer window that is assumed as a contemporary imposing volume  — and which takes advantage of the game of scale, form, color, and materiality, in counterpoint with the original building. 

 

The rehabilitation also includes the adjacent spaces, which lost their original use, the threshing floor, and the granary — two very typical objects of Portuguese traditional rural architecture — using them as spaces for exterior eating or resting.