We imagined a house in relation to a tree, the main element to which we decided to pay homage.
We designed the program in relation to this, and to other courtyards that follow one another. We decided to move away from pre-established limits. We took a step back.
We thought of white walls that would restore silence to the living space and a pause to the context.
We proposed a large double-height space under a sloping roof and in relation to the only window that faces the street, but which actually looks up at the sky.
Location:
Located in a neighborhood on the outskirts of the city of Córdoba, Argentina, the commission comes from a young family to develop their residence in the city.
Inserted into an urban-rural fabric that extends across the length and breadth of the territory on a small scale and exclusively residential, the commission seeks to break the limits set by urban regulations that promote the non-separation of dwellings from each other. On the contrary, it promotes the accumulation of disparate facades, generating a saturation of morphologies, textures, and colors.
Over the years, Córdoba has found urban development in the extension of land into rural areas, mainly to the west in relation to the Sierras Chicas. As a result, professional practice is increasingly focused on flat land, scarce in vegetation, with irregular or regular layouts, but above all, with a low, extensive, and homogeneous density. Where the collective condition is merely an accumulation of individual dwellings scattered across a territory.
In this complex context, individuality constantly seeks to stand out above the collective, and there is an excess of resources, archetypes, textures, and colors to highlight facades.
Insertion:
Faced with this interpretation, where the condition and norm do not generate an optimal result for those who choose to live in this type of isolated individual urban grouping, the house is located free of its party walls, with its perimeter free on all four sides so that it can be explored and experienced in its entirety.
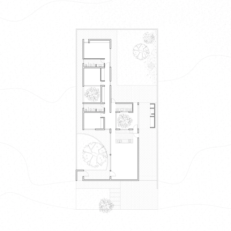
Developed on the ground floor to enjoy direct connectivity of all spaces with the exterior and greenery, the proposal aims to generate different types of patios that respond to the activities that take place in each sector of the dwelling.
In this way, a compact layout of two 5 x 10- meter bars is proposed, which are offset from each other and create two courtyards: the entrance and social courtyard, whose walls embrace the native vegetation of the lot, and the other, an open courtyard with a visual extension towards an open field.
Program:
Exclusively residential in nature, the single-family housing typology responds to the request of a young couple with two children, whose daily life is marked by family life, contemplation, reading, and above all, the development of their children in a natural and friendly environment, where the architecture accompanies their spatial performance.
To this end, two independent volumes were proposed, where on one side social and collective activities take place, while on the other, individual and private activities are carried out.
The social volume, with a prismatic morphology and a double-height sloping roof, allows the space to be expanded and opened up to a contemplative courtyard in relation to the walls and party walls that embrace the existing native vegetation on the site. The threshold between the street and the interior is marked by white walls that accompany the movement from the outside to the inside, passing through different spatial situations, until it ends in a unique double-height space that brings together the daily and collective activities of the space.
With a single element, the island, the space for cooking and fire is the one that brings people together and draws them in. The rest is this large empty space with large linear openings that constantly connect the inside with the outside, and a single window to the street, displaced in height, which allows you to observe the sky.
The link between the two prisms, the public and the private, is provided by a central courtyard, which is contemplative and visual in nature and allows light and air to enter. This small courtyard plays a fundamental role in both separating and connecting these spaces.
This transition between the public and the private is achieved through the intermediation with the exterior, which visually recreates the interior wandering.
Finally, the bedrooms and bathrooms are located in the other rectangular prism, with flat ceilings, where each private space is linked to a completely different exterior area, achieving a private connection with the use of the exterior space, a kind of direct connection to extend the inside and the outside.
Materiality:
With white walls, the house was morphologically designed as a volume that was excavated to allow light to enter and connect with the outside. In this way, the perforations that crossed these volumes were studied exhaustively in relation to the interior-exterior space, as well as the spatial requirements of each place.
Reminiscent of those old types of villas, where white walls coexisted with the green of the garden, and where the roof was the element that synthesized the architecture, it is proposed that the social volume, which rises towards the street and generates double height inside, be covered with red tiles that accompany the same reading of the flooring on the ground floor.
In this way, this morphological interplay of pure and simple forms that accompany the sun’s path responds to its interaction with the exterior and proclaims the interior’s silent and austere spatiality, as well as its exterior image.
Space:
Spatial work was predominant in this project, where the built surface required the spatial experience to be predominant.
Thus, in addition to exploring spatial morphologies, heights, and cutouts, exhaustive work was done on a continuous window opening, 2.20 meters high, which shifts the observer throughout the entire house. In this way, in relation to the exterior, these perforations provide not only an expansion with the outside, but also a visual expansion with the sky.
















