Existing Condition and Intent in Tivat public space
A courtyard currently occupied by garage structures, located in immediate proximity to the sea, the promenade, the iconic Hotel Pine, and all central public spaces of Tivat, represents a valuable and underutilized urban asset.
Tivat lacks plazas. This project aspires not only to establish a market here but to create something even more vital — a public square.
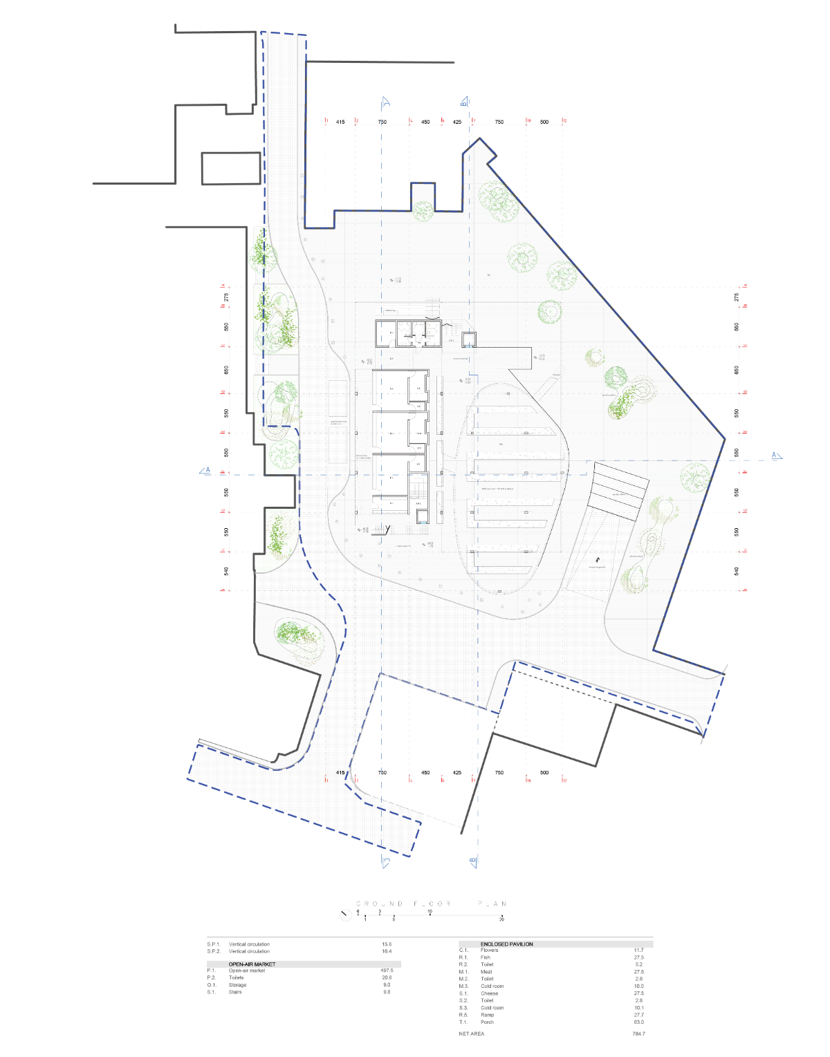
The concept treats the market as a kind of central pavilion structure — a spatial generator. The relationship is direct: the pavilion plates unfold into the square, extending into public space through various thematic zones that function autonomously, unaffected by the typical bustle of a marketplace. Through terraces, stairs, and “playful” level transitions, the various elements are merged into a single, cohesive urban square.
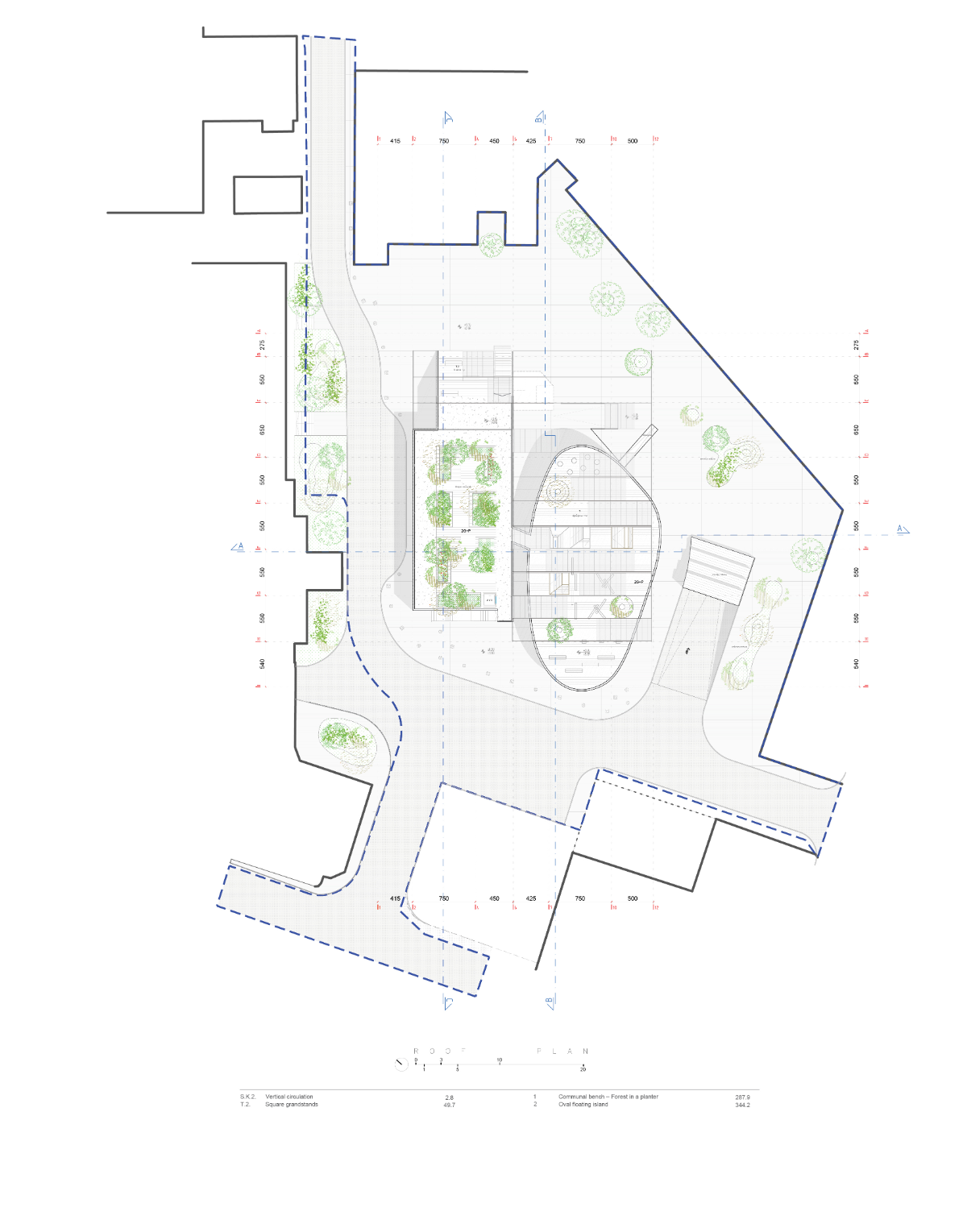
Now, the square becomes a layered space — defined by stepped seating, a green gallery, and an amorphous “floating island” occupying the aerial core of the former courtyard.
Rather than simply placing an object at the center of the courtyard, what emerges here is a unique spatial experience — a square with distinct character.
Pavilion Geometry and Spatial Strategy
The pavilion consists of two contrasting volumes, aligned on the same platform plane and subtly connected.
The slit between them highlights a path of light — the central spine of the green market street.
The geometry of the two pavilions arises from the interplay of two forces:
- the form of the courtyard frontage (an irregular yet elegant pentagon), and
- the functional requirements of a market.
A “hard,” rectilinear pavilion responds to the long northwestern façade, forming a sharp angle to the north.
Contrasting it is a soft, amorphous pavilion, sculpted in dialogue with the rest of the pentagonal geometry.
The intimacy of these two masses, their proximity and interaction, clarifies their relationship — two geometries in tension and harmony.
The central amorphous pavilion — the island — bends the surrounding space into a pulsating spatial core, the vibrant heart of the green market. The form and placement of the pavilion are so organically rooted in the site that it appears to have grown out of it — as if it had always been there. This gives rise to a particular unity between the square and its pavilion — not static, but dynamic and alive. It is this interstitial space — the in-between of the two volumes — that produces a small spatial miracle
The Market’s Social Role
The vividness of market life can profoundly enrich public space.
The market offers the square its most vital contribution: an exceptional liveliness — the richness of people, encounters, and daily rituals. All it requires is one thing: as much open space as possible.
The link between the maritime character of Pine Square and the more intimate character of the inner Market Square is articulated through materiality — light paving tones and paving surfaces that engage in a dialogue, making Tivat’s urban fabric significantly richer.
On a child’s scale (and not only a child’s), this inner square becomes a metaphor — an interior image of infinity and the sea. In its center, an “anchored ship with a deck” awaits.
Yet, this space can also be profaned, trivialized.
Balancing the dual identities of market and public square was a key consideration throughout the spatial and functional development of the project.
Structure, Light, and Atmosphere
Tall structural ribs create a modular grid — a field of cassette frames.
The authors chose to fill these frames with light — with something exceptional.
The central cassettes are filled with light through zenithal openings and polished stainless steel panels.
The various inclinations of these plates create a unique interplay of light, shadow, and reflection.
Depending on their function, some cassettes are shallower, some deeper, and some form prismatic, light-filled pyramids illuminated from above.
Thus, the ceiling becomes light and seemingly infinite.
Reflections of people, fruits, and vegetables dance across the stainless steel surfaces, projecting vibrant images overhead — surprising and delightful for both the price-focused shopper and the more casual visitor enjoying a leisurely morning among people and local produce.
This project embraces and supports a secondary — yet deeply human — function of the market:
going to the market as a social ritual, a bridge between domestic provisioning, the city square, and coffee with neighbors. In the open air!
Light Layer and Multifunctional Infrastructure
A special lightweight layer of the square’s design is a metal multipurpose structural framework.
Its primary role is to support lighting, but it also functions as a carrier for cables, event canopies, and various utilities — making it an incredibly useful urban element for both everyday utility and performative events.
The structure is deliberately simple: galvanized and powder-coated thick-walled metal profiles (80x80x5mm and Ø100x5mm). With controlled welding and proper preparation (galvanization and coating), this structure can last a lifetime with periodic maintenance (a re-coating every 7 years).
Relaxed stainless steel cables allow for the suspension of canopies; tensioned cables support lighting and reinforce the light framework.


















